Wettbewerb
Nutzung: Bürgerzentrum und Stadteiltreff
Plangutachten 2007
Wettbewerb: 2. Preis
Auslober: Stadt Neuburg
Wettbewerb
Nutzung: Bürgerzentrum und Stadteiltreff
Plangutachten 2007
Wettbewerb: 2. Preis
Auslober: Stadt Neuburg
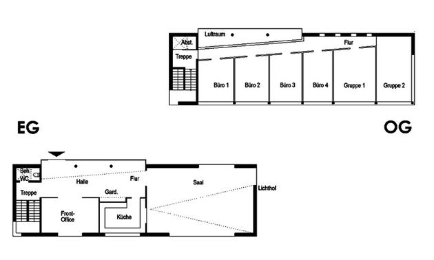
Das neue Bürgerhaus wird in einem langschmalen Riegel parallel zur Turnhalle untergebracht. Die Nähe
von Bürgerzentrum und Turnhalle ermöglicht Synergien zwischen beiden Nutzungen. Zum Platz hin öffnet
sich das Gebäude mit einer grossflächigen Verglasung vor dem Entree, die Platzfläche wird gleichsam
durch diese Öffnung hindurch in das Gebäude erweitert.
Das Foyer mit der offenen Frontoffice ist zentraler Verteiler für alle Nutzer und Gäste des Hauses, zum
anderen dient es bei Vorträgen und Feiern als Erweiterung des eigentlichen Veranstaltungsraumes.
Der Saal öffnet sich mit bodentiefen Fenstern zum vorgelagerten Platz, der bei Veranstaltungen im
Sommer mitbenutzt werden kann, das grossformatige Fenster im Süden erlaubt den Blick ins „Grüne“.
Die Gruppen- und Büroräume im 1. Obergeschoss sind einbündig an einem Flur angeordnet, der sich
im Bereich des Foyers und der grossen Glasfläche auf der Gebäudenordseite zu einem Luftraum öffnet.